2.2產品外形、結構、裝配使用等方面的特點
2.2.1安裝尺寸
原始臺面安裝面尺寸:200mm×200mm
二次沖擊裝置安裝面尺寸:120mm×120mm
2.2.2外形尺寸L×b×h:
試驗機:1060mm×960mm×2609mm
控制測量柜:650mm×600mm×1340mm
2.2.3質量:
試驗機臺體:1500kg
測量控制柜:85kg
2.2.4電源:
a 試驗機: 380V/AC 50Hz
b 控制箱: 220V/AC 50Hz
c 輸入功率: 小于3kVA
2.2.5結構與原理
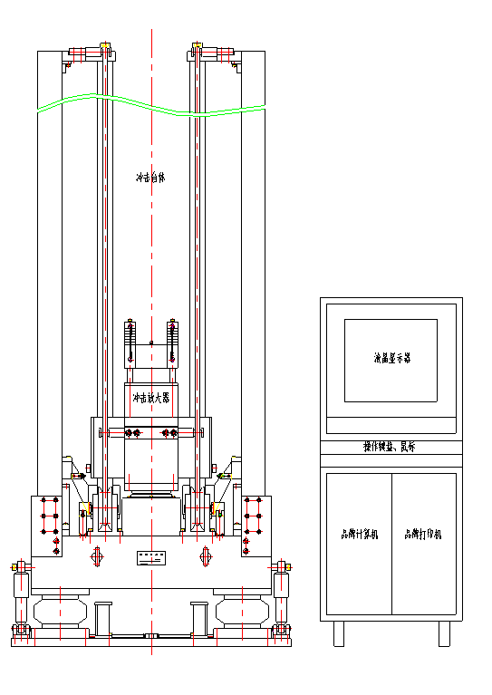
高加速度沖擊試驗系統由沖擊試驗機、控制測量分析系統組成,組成框圖見圖2.1.2-1。
沖擊試驗機包括:伺服驅動電機、滾珠絲桿副、精密減速機、導軸、沖擊底座、連接底板、隔振空氣簧、沖擊砧座、主沖擊臺面、提升座、氣液增壓缸、二次沖擊裝置、蓄能彈力繩、波形發生器、不銹鋼護網、防護門等。
控制測量分析系統包括:操作控制柜、伺服驅動控制單元、光電位置信號處理單元、沖擊脈沖信號分析處理單元、沖擊脈沖信號顯示及存儲單元等。
圖2.1.2-1系統組成框圖
設備在工作時,首先操作者應根據產品試驗條件(沖擊脈沖加速度和脈沖持續時間)判斷試驗產品應該安裝在原始工作臺面還是安裝在二次沖擊放大臺面上。這里有一個基本的判斷原則:當沖擊脈沖加速度峰值不大于30000m/s
2時,脈沖持續時間不小于0.5ms時,試驗產品就可以直接安裝在原始工作臺面上進行試驗;當沖擊脈沖加速度峰值大于30000m/s
2時,脈沖持續時間小于0.5ms時,應該先在原始工作臺面上安裝二次沖擊裝置,再將試驗產品安裝在二次沖擊裝置中的放大臺面上進行沖擊試驗。另外,操作者還應選擇測試用的加速度傳感器類型。設備由于加速度跨度很大,從最小的脈沖加速度150m/s
2到最大的脈沖加速度15000g,如果選用一個加速度傳感器,在保證最大測量范圍的前提下,傳感器的靈敏度都很高,在小量級測試時,由于輸出電量很低,難以采集到沖擊脈沖波形。因此,設備專門配備了兩只型號的加速度傳感器,一只是最大量程只到30000m/s
2以下,用于在原始臺面上沖擊使用,另外一只是最大量程可以到20000g的高加速度傳感器,主要用于在二次沖擊裝置上使用,采集沖擊加速度比較高的沖擊脈沖波形。
設備工作時,是由提升機構將工作臺面沿導向軸提升到一定高度后,臺面就具有一定的重力勢能,同時該設備還配有四根高強度的彈力繩,當臺面提升時,彈力繩也被拉伸具有彈性能。當臺面到達指定的位置后,抱閘鎖緊機構工作,將臺面牢牢的鎖死在導向軸上,提升機構下落,當提升機構到達初始的最低位置后,檢測開關發出指令,控制器得到指令后就讓計算機控制界面的跌落按鈕變亮,在點擊跌落命令后,鎖緊機構打開,靜止的臺面在重力勢能和彈力繩彈性能的作用下加速向下運動,當運動的臺面撞擊到臺體砧座上安放的波形發生器后,就會產生一個沖擊脈沖,測量系統撲捉并顯示這一沖擊脈沖的波形、脈沖峰值加速度、脈沖的持續時間等參數,我們就從顯示的數據上知道了這次臺面沖擊時獲得的脈沖峰值加速度、脈沖持續時間、脈沖波形的失真情況。臺面在沖擊后會沿導向軸向上反彈,為防止工作臺面二次和波形發生器撞擊,產生二次碰撞沖擊脈沖,鎖緊機構會在工作臺面反彈后鎖緊臺面在某一高度。臺面和波形發生器撞擊瞬間產生的沖擊能量將由臺體底部安裝的空氣彈簧以及阻尼器來運動吸收,有效降低沖擊能量對周圍環境的影響。調整波形發生器的硬度、厚度就可改變沖擊脈沖波形的持續時間,改變工作臺面的提升高度,就可改變沖擊脈沖峰值加速度的大小。
如果操作者根據試驗規程確定要在二次沖擊裝置的臺面上安裝試品,這時,應通過二次沖擊裝置中的安裝底座將二次沖擊裝置安裝在原始工作臺面上,再將試驗產品牢靠的固定在二次沖擊裝置工作臺面上,同時將大量程的加速度傳感器粘固于臺面某處,試驗產品在臺面上固定時應盡可能使產品重心和臺面中心重合,傳感器安裝時在不影響產品的安裝情況下也應盡可能靠近臺面中心,如果是剛性負載,也可以將傳感器固定在試驗試品上。這些工作做好后,就可以連接測試線,接通工業氣源,進行設備操作了。通過計算機鍵盤在運行界面上輸入工作臺面需要提升的高度以及抱閘時間,在測量界面選擇好傳感器輸出電壓和觸發電平以及波形脈寬等參數后,就可點擊運行按鈕,進行設備工作了。這里應注意由于大量程加速度傳感器的靈敏度數值都很小,在普通電荷放大器上要通過倍數變化后才能使用,如果擴大了1000倍,電荷放大器上輸出電壓的檔位就要比計算機測量界面選擇的電壓大1000倍。另外,操作者還應注意,在使用二次沖擊裝置時,沖擊底座的砧座上將永遠使用設備所帶的半正弦波形發生器中的黑后墊,不必為調整脈沖持續時間而更換此處墊子。

同理,設備工作時,提升機構將原始工作臺面以及固定在原是工作臺面上的二次沖擊裝置沿導向軸提升到一定高度后,臺面等就具有一定的重力勢能,同時由于彈力繩也被拉伸而具有彈性能。當臺面等到達指定的位置后,抱閘鎖緊機構工作,將臺面牢牢的鎖死在導向軸上,提升機構下落,當提升機構到達初始的最低位置后,檢測開關發出指令,控制器得到指令后就讓計算機控制界面的跌落按鈕變亮,在點擊跌落命令后,鎖緊機構打開,靜止的原始臺面以及二次沖擊裝置在重力勢能和彈力繩彈性能的作用下加速向下運動,當運動的原始臺面撞擊到臺體砧座上安放的黑厚波形發生器后,黑后波形發生器就會瞬間變形作用,將原始工作臺面向上反彈,在不考慮能量損失的情況下,就可認為原始工作臺面向上反彈的最大速度大小和原始臺面撞擊波形發生器前的速度大小是一樣的,只不過方向相反。此時,二次沖擊裝置上的工作臺面以及試驗產品是通過拉簧懸掛起來的,在原始臺面運動到與波形發生器相撞前的瞬間,它也會獲得跟原始臺面一樣的運動速度,具有自己的動能,在原始臺面與波形發生器相撞反彈時,二次沖擊裝置上的臺面和試驗產品會克服拉簧的彈性能繼續向下運動,跟反彈的原始臺面和二次沖擊裝置的固定座上面的窄短脈沖發生器相撞,就會產生一個沖擊脈沖,由于兩者是相向撞擊,撞擊烈度更大。測量系統撲捉并顯示這一沖擊脈沖的波形、脈沖峰值加速度、脈沖的持續時間等參數,我們就從顯示的數據上知道了這次二次沖擊裝置上臺面以及試驗產品沖擊時獲得的脈沖峰值加速度、脈沖持續時間、脈沖波形的失真情況。同理,原始臺面在沖擊后會沿導向軸向上反彈,為防止工作臺面二次和波形發生器撞擊,產生二次碰撞沖擊脈沖,鎖緊機構會在工作臺面反彈后鎖緊臺面在某一高度。二次撞擊裝置中的工作臺面以及試驗產品也會由于撞擊而發生反彈,但是,由于拉簧的作用以及二次撞擊裝置中阻尼緩沖墊的作用,臺面和試驗產品雖然會有一定的震蕩,但是基本上不會和窄短脈沖發生器再次撞擊,其震蕩烈度和撞擊烈度不可同日而語,因此,雖然沖擊脈沖波形后沿略有畸變,但是滿足標準要求不成問題。原始臺面和波形發生器撞擊瞬間產生的沖擊能量將由臺體底部安裝的空氣彈簧以及阻尼器來運動吸收,有效降低沖擊能量對周圍環境的影響。改變工作原始臺面的提升高度,就可改變沖擊脈沖峰值加速度的大小。適當的調整一下二次沖擊裝置上的窄短脈沖發生器的厚度,就會使放大臺面上產生的脈沖持續時間更符合要求。
2.2.6操作界面
3產品外形圖和實物圖片
高加速度沖擊試驗系統結構圖